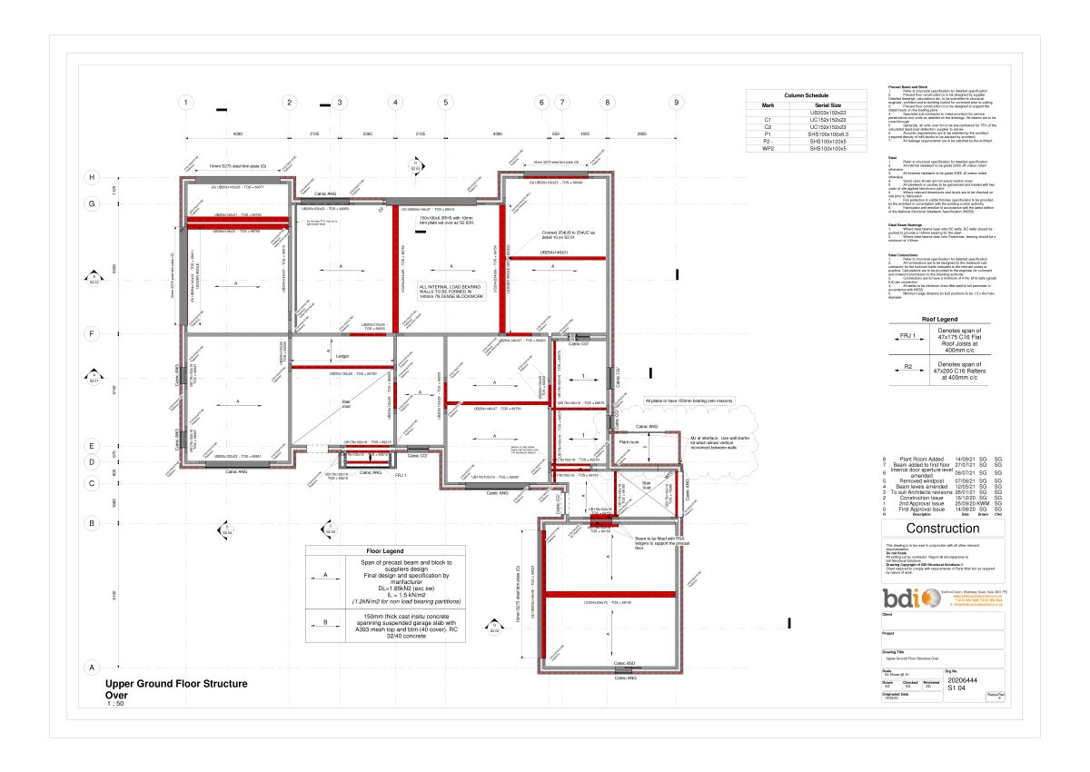
New replacement dwelling including a basement below part of the building footprint with terrace at basement level to the rear garden. The new building was positioned at the top of an existing embankment requiring slope stability analysis and careful consideration of building positioning. The structure was formed of load bearing masonry walls, isolated steel beams […]



